丈夫亡子又被拘留
日期:2020-07-26 | 内容来源: | 阅读:913
			壬辰年9月14日上午,经人介绍,大冯庄的许女士前来为自己算命,排开八字如下
		
			坤甲丁丙丙辰卯子申8岁运去年刚上王戌运
		
			细细揣摩一下,我开口道:“你是来算婚姻的吧?”许女士答道:“算是吧。”
		
			我说:“你婚姻不好啊。”
		
			许女士不语,我继续道:“你丈夫不离即死。”许女士道:“我一直一个人”。
		
			我说:“不可能,你有婚姻,有儿子,怎么会一直一个人呢?许女士笑了,说道:“你没有懂我的意思,我的意思是,自从07年我老公死了以后到现在,我一直一个人”。我说:“那也不对,你有男人,现在就有,而且这几年来,你也不止一个男人了。”
		
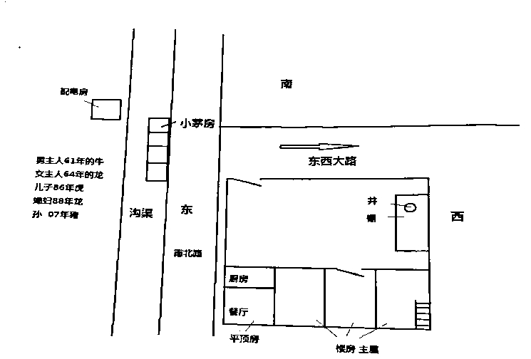
			许女士又笑了,说道:“你说的对,老公死了这几年,我男人到是有几个的,但都是些有家庭的,成不了家啊。”停了一会,许女士继续说道:“你还能看出我家什么事来啊?我说:“画出你家户型图给我看看吧。”
		
			下图就是许女士画的自家户型图。看了这图,我说道:“你家不旺财啊,你儿子自打09年以来什么事也干不了何。许女士说道:“是的,他这几年一分钱不赚尽花我的钱不谈,整天还不务正业,玩。”
		
			我继续道:“儿子结婚了吧?”
		
			许女士道:“结婚了。”
		
			我说道:“小两口成天吵着过啊?”
		
			许女士说道:“是何,其实我也不要求他赚多少钱,只要他们能好好过日子就行了。”
		
			我看了她一眼,不满意地说道:“看你这话说的,好不懂事理何,没有事业的男人会有幸福的婚姻吗?”许答道:“那也是啊。”
		
			看着她家户型图,我继续说道:“你媳妇给你生了个孙女吧?”许道:“是的,07年生的。你看我家能生个孙子吗?”我看着她笑笑说:“不能,你家不旺男丁,二胎还是女孩,许道:“其实我已经知道了,媳妇怀孕八个月了,做B超是个女孩。”
		
			我继续道:“你家要防有官灾啊”
		
			许道:“是坐牢吗?”
		
			我说:“也不至于坐牢,官司啊、拘留啊等都算。”
		
			许女士毫不掩饰的说道:“犯了两次了,今年是儿子打牌被拘留,同时罚款4000元,我自己也因打牌被拘留罚款过。”许女士话锋一转,突然间道:“我以后能有转机吗?”
		
			我无语,其实我本还有话想对许女士说的,只是实在不忍心说。许女士家的住宅其实很不旺男丁,丈夫死了,目前儿子没有事业,我断他儿子日后也要有灾。对一个女人来说,丈夫死了,儿子遇凶,媳妇又生不出孙子,能幸福吗?但是这话我实在说不出口,我只好建议她提醒儿子注意安全。
		